
대기오염 방지 시설 활성탄 교체 관련 정확한 활성탄 양을 모르고 있는 경우가 많습니다.
활성탄 교체공사의 경우 활성탄량이 견적의 대부분을 차지하고, 활성탄 양에 따라 작업 작업자의 수 및 중장비 사용 여부가
결정될 수 있기 때문에 가장 중요한 정보입니다.
몇몇 사업장의 경우 대기배출시설 신고 필증에 사용량이 기입되어 있는 경우도 있지만,
대부분의 경우 기입이 되어있지 않거나 찾기 어려운 경우가 많기 때문에
해당 정보를 기억하고 있거나 바로 알기 힘들 수 있습니다.
위와 같은 상황을 줄이고자 이번 포스팅에서는 사업장에서 활성탄의 양을 계산할 수 있도록 안내하고자 합니다.
저희 블로그 글을 보시고 사업장 흡착탑의 활성탄 양을 숙지하여 견적 문의에 조금이나마 도움이 되었으면 좋겠습니다.
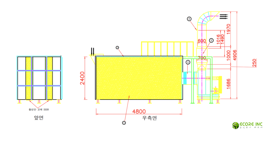
기본적으로 흡착탑내부에는 활성탄 배드라고 하는, 매트릭스 모양의 활성탄 층이 있습니다.

위 도면의 노란색 부분이 활성탄 배드인데요. 오염된 공기가 해당 활성탄층을 통과하면서 오염물질은 활성탄 사이의 공극에 걸러지고, 깨끗한(정화된) 공기만 밖으로 빠져나가게 됩니다. 따라서 활성탄 양을 구하려면 저 활성탄층의 부피를 구하면 됩니다. 위 흡착탑의 경우 가로가 4800, 세로가 2400(표기가 안 되어있는데 2400입니다), 높이가 2400입니다. 여기서 활성탄층 부피의 영향을 주는 것은 가로 길이와 높이입니다. 여기다 활성탄층의 두께를 곱해주면 활성탄의 부피가 계산됩니다. 일반적으로 활성탄의 두께는 300mm~500mm 사이입니다. 해당 두께를 알기 위해선 흡착탑 상부의 투입구 폭을 측정해 보면 됩니다.

위 사진처럼 흡착탑(AC TOWER) 상부로 올라가면 투입구가 있습니다. 사진에 표기해둔 두께가 활성탄층의 두께입니다. 이렇게 흡착탑의 가로, 높이 및 활성탄층의 두께를 곱하면 활성탄 배드의 부피가 나옵니다. 여기다 배드의 개수를 곱해주면 최종 활성탄 부피가 나오게 됩니다.
위쪽 도면에 표기된 흡착탑의 경우 배드가 2개이고, 사진에 나온 흡착탑은 배드가 3개입니다. 해당 배드갯수만큼 곱해주면 최종 활성탄의 부피가 계산됩니다.
최종적으로, 활성탄의 비중을 곱해주면 필요한 활성탄의 무게가 계산되게 됩니다. 활성탄은 일반적으로 500~550kg/m3입니다. 위와 같은 방식으로 아래 예시 도면의 활성탄 양을 구해보겠습니다.

위 도면에서 흡착탑의 가로 길이는 3100 -700 = 2400입니다. 흡착탑의 높이는 왼쪽에 보면 2400입니다. 배드의 두께는 400이고 총 2개의 활성탄 배드가 있습니다.
부피를 계산할 때는 m 단위로 환산해야 되기 때문에 가로 길이는 2.4m, 높이는 2.4m, 두께는 0.4m 총 2개의 배드가 있음으로 2.4 X 2.4 X 0.4 X 2 = 4.608m3입니다.
활성탄의 비중을 500kg/m3으로 계산하면 4.608 X 500 = 2304kg입니다.
위와 같이 계산하면 활성탄 양을 계산할 수 있습니다.
해당 블로그 글 바로가기
종종 흡착탑의 배드가 위 도면같이 서있는 형식이 아닌, 옆으로 누어 있어서 양파망(메시 망)에 활성탄을 담아 쌓아놓는 형태가 있습니다.

위 사진같이 놓여있는 경우가 있는데 이런 경우는 흡착탑의 높이가 아닌 가로, 세로를 측정합니다. 또한 이런 형태의 경우, 활성탄 배드의 두께가 결정돼 있지 않습니다. 일반적으로 이런 흡착탑의 경우 두께를 350mm로 계산합니다. 따라서 가로, 세로, 두께를 곱하고 거기에 배드 개수를 곱해 부피를 계산, 비중을 곱하여 최종 무게를 결정합니다.
위와 같은 방식으로 활성탄 양을 계산하여 숙지하고 계시면, 견적서 작성에 큰 도움이 됩니다.
이번 블로그 포스팅도 귀 사업장에 큰 도움이 되었으면 합니다.
도움이 필요하시면 언제든 주식회사 에코어로 문의하세요!
대기오염 방지 시설 활성탄 교체 관련 정확한 활성탄 양을 모르고 있는 경우가 많습니다.
활성탄 교체공사의 경우 활성탄량이 견적의 대부분을 차지하고, 활성탄 양에 따라 작업 작업자의 수 및 중장비 사용 여부가
결정될 수 있기 때문에 가장 중요한 정보입니다.
몇몇 사업장의 경우 대기배출시설 신고 필증에 사용량이 기입되어 있는 경우도 있지만,
대부분의 경우 기입이 되어있지 않거나 찾기 어려운 경우가 많기 때문에
해당 정보를 기억하고 있거나 바로 알기 힘들 수 있습니다.
위와 같은 상황을 줄이고자 이번 포스팅에서는 사업장에서 활성탄의 양을 계산할 수 있도록 안내하고자 합니다.
저희 블로그 글을 보시고 사업장 흡착탑의 활성탄 양을 숙지하여 견적 문의에 조금이나마 도움이 되었으면 좋겠습니다.
기본적으로 흡착탑내부에는 활성탄 배드라고 하는, 매트릭스 모양의 활성탄 층이 있습니다.
위 도면의 노란색 부분이 활성탄 배드인데요. 오염된 공기가 해당 활성탄층을 통과하면서 오염물질은 활성탄 사이의 공극에 걸러지고, 깨끗한(정화된) 공기만 밖으로 빠져나가게 됩니다. 따라서 활성탄 양을 구하려면 저 활성탄층의 부피를 구하면 됩니다. 위 흡착탑의 경우 가로가 4800, 세로가 2400(표기가 안 되어있는데 2400입니다), 높이가 2400입니다. 여기서 활성탄층 부피의 영향을 주는 것은 가로 길이와 높이입니다. 여기다 활성탄층의 두께를 곱해주면 활성탄의 부피가 계산됩니다. 일반적으로 활성탄의 두께는 300mm~500mm 사이입니다. 해당 두께를 알기 위해선 흡착탑 상부의 투입구 폭을 측정해 보면 됩니다.
위 사진처럼 흡착탑(AC TOWER) 상부로 올라가면 투입구가 있습니다. 사진에 표기해둔 두께가 활성탄층의 두께입니다. 이렇게 흡착탑의 가로, 높이 및 활성탄층의 두께를 곱하면 활성탄 배드의 부피가 나옵니다. 여기다 배드의 개수를 곱해주면 최종 활성탄 부피가 나오게 됩니다.
위쪽 도면에 표기된 흡착탑의 경우 배드가 2개이고, 사진에 나온 흡착탑은 배드가 3개입니다. 해당 배드갯수만큼 곱해주면 최종 활성탄의 부피가 계산됩니다.
최종적으로, 활성탄의 비중을 곱해주면 필요한 활성탄의 무게가 계산되게 됩니다. 활성탄은 일반적으로 500~550kg/m3입니다. 위와 같은 방식으로 아래 예시 도면의 활성탄 양을 구해보겠습니다.
위 도면에서 흡착탑의 가로 길이는 3100 -700 = 2400입니다. 흡착탑의 높이는 왼쪽에 보면 2400입니다. 배드의 두께는 400이고 총 2개의 활성탄 배드가 있습니다.
부피를 계산할 때는 m 단위로 환산해야 되기 때문에 가로 길이는 2.4m, 높이는 2.4m, 두께는 0.4m 총 2개의 배드가 있음으로 2.4 X 2.4 X 0.4 X 2 = 4.608m3입니다.
활성탄의 비중을 500kg/m3으로 계산하면 4.608 X 500 = 2304kg입니다.
위와 같이 계산하면 활성탄 양을 계산할 수 있습니다.
해당 블로그 글 바로가기
종종 흡착탑의 배드가 위 도면같이 서있는 형식이 아닌, 옆으로 누어 있어서 양파망(메시 망)에 활성탄을 담아 쌓아놓는 형태가 있습니다.
위 사진같이 놓여있는 경우가 있는데 이런 경우는 흡착탑의 높이가 아닌 가로, 세로를 측정합니다. 또한 이런 형태의 경우, 활성탄 배드의 두께가 결정돼 있지 않습니다. 일반적으로 이런 흡착탑의 경우 두께를 350mm로 계산합니다. 따라서 가로, 세로, 두께를 곱하고 거기에 배드 개수를 곱해 부피를 계산, 비중을 곱하여 최종 무게를 결정합니다.
위와 같은 방식으로 활성탄 양을 계산하여 숙지하고 계시면, 견적서 작성에 큰 도움이 됩니다.
이번 블로그 포스팅도 귀 사업장에 큰 도움이 되었으면 합니다.
도움이 필요하시면 언제든 주식회사 에코어로 문의하세요!